Contact Jim Tacy
Schedule A Showing
2050 18th Street, CRYSTAL RIVER, FL 34428
Priced at Only: $1,600,000
For more Information Call
Address: 2050 18th Street, CRYSTAL RIVER, FL 34428
Property Location and Similar Properties
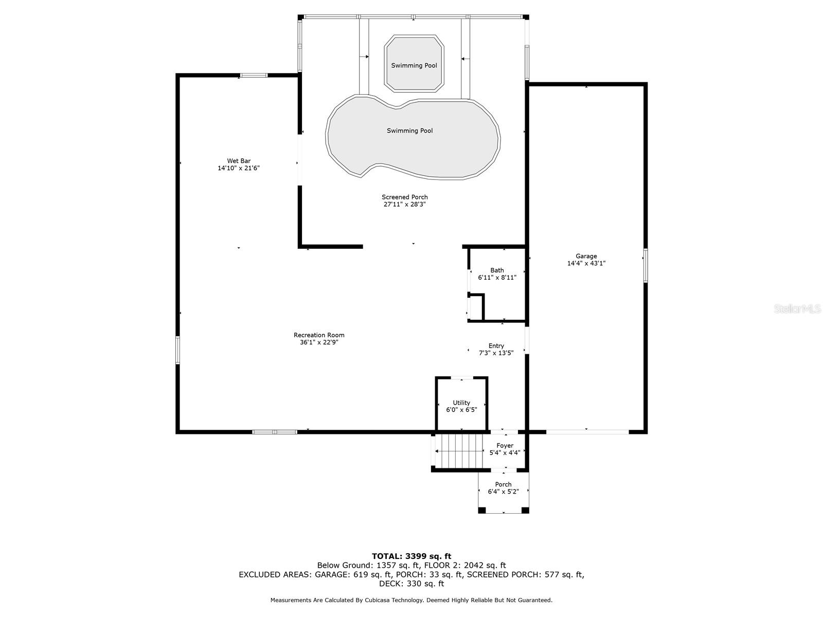
- MLS#: OM721353 ( Residential )
- Street Address: 2050 18th Street
- Viewed: 369
- Price: $1,600,000
- Price sqft: $359
- Waterfront: Yes
- Wateraccess: Yes
- Waterfront Type: Canal - Saltwater,Canal Front
- Year Built: 2004
- Bldg sqft: 4459
- Bedrooms: 3
- Total Baths: 3
- Full Baths: 3
- Garage / Parking Spaces: 1
- Days On Market: 50
- Additional Information
- Geolocation: 28.9117 / -82.6249
- County: CITRUS
- City: CRYSTAL RIVER
- Zipcode: 34428
- Subdivision: Woodland Estates
- Provided by: SYNERGY REALTY SERVICES LLC
- Contact: Cherie Breitenbecker
- 352-309-6274

- DMCA Notice
-
Description"Stunning waterfront property for sale! This custom built home from 2004 boasts 3 bedrooms and 3 bathrooms, featuring a double sided fireplace perfect for cozy evenings. Enjoy the serene views from the upper wrap around deck overlooking the screened pool with a hot tub. The interior is tastefully adorned with wood cabinets, wood floors & custom made window shades and drapes. Hang out down stairs after a day on the boat at the bar or in the large area that opens up overlooking the pool. For boating enthusiasts, this property offers not just one, but two boat docks capable of supporting 8,000 lbs and 15,000 lbs respectively. Additionally, never worry about power outages with the included 22kw gas generator and 200 amp auto transfer switch. 500 gal LP tank to feed generator, pool heater and fireplace. .4 miles to Crystal River / 1.4 miles to Twin Rivers Marina / 5 miles to Gulf & 2.5 miles to Kings Bay (by boat). Located on the first canal out to the Gulf, this home is a true waterfront gem. Don't miss this opportunity to own a piece of paradise!" Own this home and never miss a beautiful sunset again!!
Features
Waterfront Description
- Canal - Saltwater
- Canal Front
Appliances
- Bar Fridge
- Built-In Oven
- Cooktop
- Dishwasher
- Disposal
- Dryer
- Electric Water Heater
- Exhaust Fan
- Freezer
- Ice Maker
- Microwave
- Range
- Refrigerator
- Washer
Home Owners Association Fee
- 0.00
Basement
- Full
Carport Spaces
- 0.00
Close Date
- 0000-00-00
Cooling
- Central Air
- Attic Fan
Country
- US
Covered Spaces
- 0.00
Exterior Features
- Balcony
- Outdoor Shower
- Private Mailbox
- Sliding Doors
- Storage
Flooring
- Carpet
- Ceramic Tile
- Wood
Furnished
- Negotiable
Garage Spaces
- 1.00
Heating
- Central
- Electric
- Heat Pump
Insurance Expense
- 0.00
Interior Features
- Cathedral Ceiling(s)
- Ceiling Fans(s)
- High Ceilings
- Living Room/Dining Room Combo
- PrimaryBedroom Upstairs
- Solid Wood Cabinets
- Vaulted Ceiling(s)
- Wet Bar
- Window Treatments
Legal Description
- WOODLAND ESTS UNIT 2B PB 4 PG 29 LOT 14 BLK 19
Levels
- Two
Living Area
- 2212.00
Lot Features
- Cleared
- Flood Insurance Required
- Landscaped
- Paved
Area Major
- 34428 - Crystal River
Net Operating Income
- 0.00
Occupant Type
- Owner
Open Parking Spaces
- 0.00
Other Expense
- 0.00
Parcel Number
- 17E18S17002B 00190 0140
Pool Features
- Auto Cleaner
- Fiber Optic Lighting
- Fiberglass
- Heated
- In Ground
- Lighting
- Outside Bath Access
- Pool Sweep
- Salt Water
- Screen Enclosure
Property Condition
- Completed
Property Type
- Residential
Roof
- Metal
Sewer
- Public Sewer
Tax Year
- 2025
Township
- 18
Utilities
- BB/HS Internet Available
- Cable Available
- Electricity Available
- Electricity Connected
- Natural Gas Connected
- Sewer Available
- Water Connected
View
- Water
Views
- 369
Virtual Tour Url
- https://www.propertypanorama.com/instaview/stellar/OM721353
Water Source
- Public
Year Built
- 2004
Zoning Code
- RES
- Jim Tacy, Broker
- Tropic Shores Realty
- Office: 352.556.4875
- Mobile: 352.279.4408
- tropicshoresrealty@gmail.com








































































